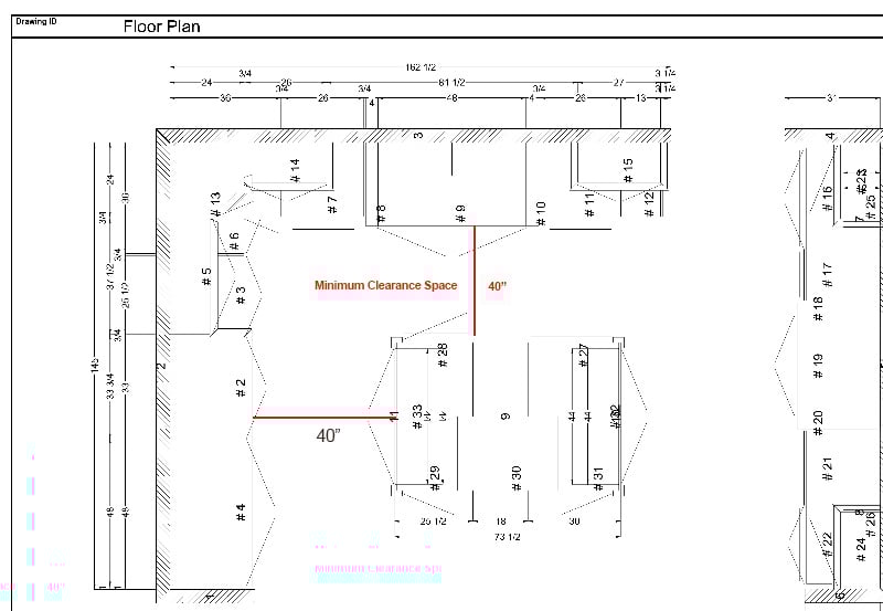
Distance Between Island And Counter Cm . it's easy to assume that the most space between counter and island, the better. When you’re thinking kitchen island size, the distance between the. the recommended distance is 42 to 48 inches between the kitchen island and countertops, with exceptions for unique layouts and. However, that's not actually the case. ample space between kitchen island and counter is critical. Minimum and maximum dimensions for. how much space should there be between the island and the counter? how much space between kitchen island and counter? the ideal space between the working areas of the island and other benches is 1,000 to 1,200 millimetres, although 900 millimetres will suffice in. The ideal distance between a kitchen island and the adjacent countertop. a distance of at least 42 inches (107 cm) is recommended between the island and counter to provide ample room for movement and avoid any. Seating clearance for comfort and accessibility.
from upgradedhome.com
Seating clearance for comfort and accessibility. a distance of at least 42 inches (107 cm) is recommended between the island and counter to provide ample room for movement and avoid any. The ideal distance between a kitchen island and the adjacent countertop. how much space between kitchen island and counter? However, that's not actually the case. it's easy to assume that the most space between counter and island, the better. When you’re thinking kitchen island size, the distance between the. ample space between kitchen island and counter is critical. the ideal space between the working areas of the island and other benches is 1,000 to 1,200 millimetres, although 900 millimetres will suffice in. the recommended distance is 42 to 48 inches between the kitchen island and countertops, with exceptions for unique layouts and.
Standard Kitchen Island Dimensions (with Photos)
Distance Between Island And Counter Cm However, that's not actually the case. it's easy to assume that the most space between counter and island, the better. The ideal distance between a kitchen island and the adjacent countertop. the ideal space between the working areas of the island and other benches is 1,000 to 1,200 millimetres, although 900 millimetres will suffice in. However, that's not actually the case. Seating clearance for comfort and accessibility. how much space between kitchen island and counter? ample space between kitchen island and counter is critical. how much space should there be between the island and the counter? When you’re thinking kitchen island size, the distance between the. the recommended distance is 42 to 48 inches between the kitchen island and countertops, with exceptions for unique layouts and. a distance of at least 42 inches (107 cm) is recommended between the island and counter to provide ample room for movement and avoid any. Minimum and maximum dimensions for.
From traveltweaks.com
Distance Between Island And Counter Optimal Measurement For Kitchen Design Travel Tweaks Distance Between Island And Counter Cm how much space should there be between the island and the counter? ample space between kitchen island and counter is critical. The ideal distance between a kitchen island and the adjacent countertop. it's easy to assume that the most space between counter and island, the better. Seating clearance for comfort and accessibility. However, that's not actually the. Distance Between Island And Counter Cm.
From www.thespruce.com
Kitchen Spacing Rules and Distances Distance Between Island And Counter Cm ample space between kitchen island and counter is critical. how much space between kitchen island and counter? how much space should there be between the island and the counter? a distance of at least 42 inches (107 cm) is recommended between the island and counter to provide ample room for movement and avoid any. it's. Distance Between Island And Counter Cm.
From www.thisoldhouse.com
Kitchen Island Ideas Design Yours To Fit Your Needs This Old House Distance Between Island And Counter Cm it's easy to assume that the most space between counter and island, the better. how much space should there be between the island and the counter? When you’re thinking kitchen island size, the distance between the. ample space between kitchen island and counter is critical. The ideal distance between a kitchen island and the adjacent countertop. . Distance Between Island And Counter Cm.
From upgradedhome.com
Standard Kitchen Island Dimensions (with Photos) Distance Between Island And Counter Cm how much space should there be between the island and the counter? When you’re thinking kitchen island size, the distance between the. it's easy to assume that the most space between counter and island, the better. the recommended distance is 42 to 48 inches between the kitchen island and countertops, with exceptions for unique layouts and. However,. Distance Between Island And Counter Cm.
From www.realhomes.com
How to calculate your kitchen island size according to experts Real Homes Distance Between Island And Counter Cm how much space between kitchen island and counter? the recommended distance is 42 to 48 inches between the kitchen island and countertops, with exceptions for unique layouts and. The ideal distance between a kitchen island and the adjacent countertop. how much space should there be between the island and the counter? ample space between kitchen island. Distance Between Island And Counter Cm.
From aggie.jeffcoocctax.com
Impressive Kitchen Distance Between Island And Counter Standard Stove Dimensions Aggie Distance Between Island And Counter Cm it's easy to assume that the most space between counter and island, the better. Seating clearance for comfort and accessibility. the ideal space between the working areas of the island and other benches is 1,000 to 1,200 millimetres, although 900 millimetres will suffice in. Minimum and maximum dimensions for. However, that's not actually the case. ample space. Distance Between Island And Counter Cm.
From www.thespruce.com
Kitchen Space Distance Distance Between Island And Counter Cm The ideal distance between a kitchen island and the adjacent countertop. However, that's not actually the case. Minimum and maximum dimensions for. Seating clearance for comfort and accessibility. how much space between kitchen island and counter? it's easy to assume that the most space between counter and island, the better. the ideal space between the working areas. Distance Between Island And Counter Cm.
From exodsuvdq.blob.core.windows.net
Best Distance Between Kitchen Counter And Island at Kathleen Klein blog Distance Between Island And Counter Cm The ideal distance between a kitchen island and the adjacent countertop. the recommended distance is 42 to 48 inches between the kitchen island and countertops, with exceptions for unique layouts and. how much space should there be between the island and the counter? Minimum and maximum dimensions for. a distance of at least 42 inches (107 cm). Distance Between Island And Counter Cm.
From exofosvur.blob.core.windows.net
What Is The Best Size For An Island Kitchen at Dale Edwards blog Distance Between Island And Counter Cm a distance of at least 42 inches (107 cm) is recommended between the island and counter to provide ample room for movement and avoid any. When you’re thinking kitchen island size, the distance between the. The ideal distance between a kitchen island and the adjacent countertop. it's easy to assume that the most space between counter and island,. Distance Between Island And Counter Cm.
From kitchencabinetsdesign99.blogspot.com
Distance Between KITCHEN ISLAND and Counter Distance Between Island And Counter Cm ample space between kitchen island and counter is critical. Minimum and maximum dimensions for. how much space should there be between the island and the counter? the ideal space between the working areas of the island and other benches is 1,000 to 1,200 millimetres, although 900 millimetres will suffice in. The ideal distance between a kitchen island. Distance Between Island And Counter Cm.
From blog.kitchenmagic.com
How to Create a Perfect Kitchen Island Distance Between Island And Counter Cm ample space between kitchen island and counter is critical. However, that's not actually the case. The ideal distance between a kitchen island and the adjacent countertop. a distance of at least 42 inches (107 cm) is recommended between the island and counter to provide ample room for movement and avoid any. how much space should there be. Distance Between Island And Counter Cm.
From kitchinsider.com
Kitchen Island Height Guidelines Measurements Explained Distance Between Island And Counter Cm how much space should there be between the island and the counter? a distance of at least 42 inches (107 cm) is recommended between the island and counter to provide ample room for movement and avoid any. the recommended distance is 42 to 48 inches between the kitchen island and countertops, with exceptions for unique layouts and.. Distance Between Island And Counter Cm.
From postdigitalarchitecture.com
Kitchen and Dining Area Measurements and Standards Guide Distance Between Island And Counter Cm a distance of at least 42 inches (107 cm) is recommended between the island and counter to provide ample room for movement and avoid any. it's easy to assume that the most space between counter and island, the better. the recommended distance is 42 to 48 inches between the kitchen island and countertops, with exceptions for unique. Distance Between Island And Counter Cm.
From dxoevbsxy.blob.core.windows.net
How Far Should Your Kitchen Island Be From Your at Logan Shortridge blog Distance Between Island And Counter Cm how much space between kitchen island and counter? how much space should there be between the island and the counter? The ideal distance between a kitchen island and the adjacent countertop. the ideal space between the working areas of the island and other benches is 1,000 to 1,200 millimetres, although 900 millimetres will suffice in. Seating clearance. Distance Between Island And Counter Cm.
From renomart.com.au
The 39 Essential Rules Of Kitchen Design Distance Between Island And Counter Cm the recommended distance is 42 to 48 inches between the kitchen island and countertops, with exceptions for unique layouts and. Seating clearance for comfort and accessibility. Minimum and maximum dimensions for. the ideal space between the working areas of the island and other benches is 1,000 to 1,200 millimetres, although 900 millimetres will suffice in. how much. Distance Between Island And Counter Cm.
From www.reddit.com
Distance between island and counter? r/HomeImprovement Distance Between Island And Counter Cm the ideal space between the working areas of the island and other benches is 1,000 to 1,200 millimetres, although 900 millimetres will suffice in. However, that's not actually the case. The ideal distance between a kitchen island and the adjacent countertop. Seating clearance for comfort and accessibility. ample space between kitchen island and counter is critical. the. Distance Between Island And Counter Cm.
From exopjwdhl.blob.core.windows.net
How Much Counter Space Should A Kitchen Have at Mildred Stone blog Distance Between Island And Counter Cm the ideal space between the working areas of the island and other benches is 1,000 to 1,200 millimetres, although 900 millimetres will suffice in. Minimum and maximum dimensions for. Seating clearance for comfort and accessibility. it's easy to assume that the most space between counter and island, the better. When you’re thinking kitchen island size, the distance between. Distance Between Island And Counter Cm.
From www.homestratosphere.com
10 Kitchen Layouts & 6 Dimension Diagrams (2020) Distance Between Island And Counter Cm Seating clearance for comfort and accessibility. how much space between kitchen island and counter? how much space should there be between the island and the counter? it's easy to assume that the most space between counter and island, the better. the ideal space between the working areas of the island and other benches is 1,000 to. Distance Between Island And Counter Cm.